Душевые кабины для дачи уличные
Душевые кабины для дачи — одни из тех «сооружений», которые несложно сделать самостоятельно, а обойтись без них очень трудно. Существует огромное количество различных вариантов душевых кабин, каждый мастер вносит в их конструкцию свои усовершенствования. Мы не будем останавливаться на сложных и дорогих вариантах, рассмотрим самые «бюджетные», но очень функциональные решения.

Душевые кабины для дачи уличные

Душевые кабины для дачи уличные
Содержание материала
С чего начинать строительство
Перед началом строительства определитесь, что вы желаете иметь в итоге, какие возможности и характеристики должна иметь душевая кабина. Конкретные особенности душевой кабинки зависят от:

Уличные душевые кабинки из габионов

Уличный душ

Уличный душ из кирпича (камня)

Большой деревянный уличный душ
На размерах кабинок не стоит «экономить», делайте ее по высоте не менее 2,2 метра, размеры основания не менее 1×1 м. Дело в том, что в кабинке должно быть место для банных принадлежностей и одежды. Рассмотрим пошагово два варианта кабинок – с металлическим и деревянным каркасом.
Душевая кабинка с металлическим каркасом

Металлическая душевая кабина

Душевая кабинка с металлическим каркасом

Душевая кабина своими руками на даче фото
Для производства работ вам понадобятся квадратные трубы сечением не менее 20×30 мм, листовое железо толщиной от 1 мм и уголок 45×45 мм. Инструменты – угловая шлифовальная машина (болгарка) и сварочный аппарат.

ГОСТ 8639 82 трубы стальные квадратные

Лист железа оцинкованный

Уголок 45 х 45
Шаг 1. Нарисуйте эскиз кабинки.

Проект летнего душа
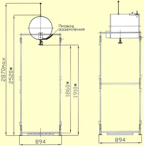
Высота кабинки примерно 2,2 метра, размер периметра 1×1 м.
Для жесткости предусмотрите три ряда перемычек: вверху, посредине и внизу. Для нижних перемычек лучше использовать уголок, на его полки будет устанавливаться деревянная решетка. В верхней части нужно сделать упоры для размещения емкости под воду, конкретные размеры упоров зависят от габаритов емкости.
Обшивать боковые поверхности можно металлическим профилем, сотовым поликарбонатом, пластиковой или деревянной вагонкой или обтягивать различными гибкими материалами. Под каждый материал нужно продумать места для крепления. Сверлить крепежные отверстия в квадратной трубе нельзя, приварите для этих целей металлические пластины.

Обшитый поликарбонатом металлический каркас

Душ на даче из поликарбоната своими руками
Не стоит слишком увлекаться сотовым поликарбонатом для обшивки. Он по многим показателям хорош, но только ограниченное время. Один из недостатков, о котором никогда не упоминают производители – со временем в сотах начнет расти мох. И никакие уплотнители не помогут, сила природы преодолеет любые защитные меры. Вид листового поликарбоната со мхом внутри вас не обрадует и это мягко говоря. Мы вообще советуем душевые кабины закрывать легкими и дешевыми мягкими материалами. Их можно каждый сезон менять на новые, кабинка всегда будет иметь привлекательный вид без больших потерь времени и финансов.

Кабинка обтянута прорезиненной тканью
Шаг 2.
Если вы уже имеете представление об устройстве каркаса, можете приступать к его изготовлению.
Начинайте работы с резки металлических элементов. Отрежьте 4 трубы длиной 2,2 метра (вертикальные опоры). Если вы желаете сделать в кабинке открывающиеся двери, то для них понадобится отрезать еще два куска трубы, длина уже может быть меньшей, размеры двери по высоте достаточно выдерживать в пределах 1,5 м.

Резка квадратной трубы
Под упор решетки понадобится четыре уголка по одному метру. Такой же длины нужно заготовить трубы для перемычек боковых поверхностей и дверей. Их потребуется по две для каждого элемента кабинки. Резать детали нужно только по шаблону, все углы строго по 90°.
Очень важно: соблюдайте правила техники безопасности во время работы со шлифовальной машиной, травмы могут быть очень тяжелыми. Некоторые «умельцы» устанавливают режущие диски таким способом, чтобы искры во время работы летели в противоположную сторону от них. Это грубейшая ошибка! В таком положении болгарку подрывает с огромным усилием, удержать в руках инструмент невозможно.

Резка металла болгаркой
Шаг 3.
Проверьте места срезов и зачистите их под сварку. Фаску можно не делать, прочность сварочного шва и так выдержит нагрузки.

Пример зачищенной под сварку трубы
Шаг 4.
Для повышения прочности конструкции заготовьте металлические равносторонние уголки, длина катетов 5÷10 сантиметров. Установить их желательно по всем углам каркаса и дверей. Под ноги нужно приварить квадратные упоры ≈20×20 см.

Треугольники для усиления конструкции

Пример укрепления каркаса уголками
Шаг 5.
Сварка каркаса. Работы выполняйте очень внимательно, никогда сразу не ложите полный шов с одной стороны. Во время остывания он потянет металл, возвратить его первоначальное положение будет очень сложно. Вначале наживите соприкасающиеся трубы с одной стороны, подровняйте конструкцию и только после этого можно класть полный шов с противоположной. Шов остыл – заваривайте то место, где вы наживляли.

Сварка каркаса
Для сварки можно использовать электроды переменного напряжения Ø4 мм.

Электроды переменного напряжения Ø4 мм
Это наиболее универсальный диаметр электродов, ними можно варить металл толщиной 1÷4 мм. Правильно подбирайте силу тока, металл должен плавиться под электродом на нужную глубину, но не прорезать стенку трубы полностью. Если у вас нет опыта выполнения сварочных работ – лучше обратитесь за помощью к профессионалу. Это в конечном итоге обойдется дешевле, чем самому переводить дорогостоящий материал в брак.
Работы нужно выполнять на ровной площадке, постоянно следите за углами конструкции. Каркас будет стоять на металлических пластинах-ножках размером примерно 20×20 сантиметров. Заготовьте их и приварите.
Шаг 6.
Сборка каркаса. Самостоятельно эти работы не сделать, нужно позвать помощника. Сваривайте отдельные элементы каркаса указанным способом, постоянно проверяйте его пространственное положение. В нижней части привариваются уголки, на которых будет лежать деревянная решетка, сверху сделайте конструкцию для емкости под воду.

Металлический каркас для душа летнего

Летний душ на дачу — каркас

Самодельный неразборный каркас
Шаг 7.
Финишная отделка. Тщательно уберите шлифовальной машиной все заусеницы и острые углы, очистите металлические конструкции от ржавчины, масла и грязи.

Для шлифовки и полировки сварных швов нужна мощная УШМ 125 мм с электронной регулировкой оборотов

Рассмотрим заготовку, на которой нужно отполировать сварной шов

Для начала нужно удалить сварной шов, т.е. непосредственно снять лишний металл

Удаляем сварной шов На этом этапе можно остановиться или продолжать обработку для лучшего результата

Используем доводочный круг 5A MED ВАЖНО! Скорость обработки 3000-4000 об./мин.

Делаем доводку поверхности

Полируем доводочным кругом 2SF

Поверхность подготовлена идеально

Для полировки используется опорная тарелка жесткая, войлочный диск на липучке и розовая паста

Полируем и оцениваем зеркальный результат

Берем пасту для полировки

Полировка идеальна. Но для дачного душа не обязательно полировать сварные швы так качественно
Для окрашивания применяйте специальные краски по металлу. Красить придется минимум два раза, после первого раза будет просматриваться металл. Не пользуйтесь пневматическим краскопультом, он годится только для окрашивания больших по площади поверхностей. В вашем случае большинство краски «уйдет» в воздух. Красьте только кисточкой, на всю покраску вам не понадобится более одного – двух часов.

На фото — антикоррозийные составы по металлу
Далее можно изготавливать деревянные решетки под ноги и приступать к установке емкости для воды. Как устанавливать емкость и подключать душ мы расскажем в конце статьи после описания изготовления деревянного каркаса душевой кабинки.
Видео — Летний душ на участке своими руками
Душевая кабинка с деревянным каркасом
Линейные размеры могут быть такими же, как и в варианте с металлическим каркасом. Материал изготовления – деревянные бруски 50×50 мм, доски 50×100 мм, конкретные размеры подбирайте с учетом общего веса емкости под воду. Доски и бруски нужно пропустить через рейсмус – выровняется размер и уберутся шероховатости.

Схема изготовления кабины из деревянного бруса и обрезной доски

Летний душ своими руками

Душ своими руками у себя на даче
Шаг 1. Нарисуйте эскиз. Он пригодится не только во время работы, с его помощью намного легче выбирать оптимальный вариант конструкции. Лучше свои ошибки исправлять на бумаге, чем на готовом изделии. Нарисуйте на бумаге несколько вариантов, продумайте расположение упоров, полочек и бака для емкости. Сравните несколько эскизов душевых кабинок и выберите для себя наиболее подходящую.
Шаг 2. По размерам отрежьте все заготовки для каркаса, по схеме он не отличается от металлического. Еще раз обращаем внимание – следите за размерами, заготовки делайте только по шаблонам.

Пример сборки деревянного каркаса
Шаг 3. На ровной площадке начинайте собирать отдельные элементы конструкции. Соединение лучше делать в полдерева. Если для вас это трудно – пользуйтесь металлическими пластинами и уголками на саморезах.


Вполдерева с прямым замком

Металлические уголки

Перфорированный крепежный уголок
Шаг 4. Соберите отдельные элементы каркаса в единую конструкцию. Если есть двери – укрепите их на петлях.

Схема устройства петли

Врезка универсальный дверных петель

Как установить петли
Вместо дверей можно сделать обыкновенную шторку. Предусмотрите место установки бака для воды.
Прикрепите с внутренней стороны полочки для банных принадлежностей и крючки для полотенца и одежды. Заготовьте деревянную решетку для ног.

Деревянная решетка — пример

На фото видны полочки для мыльных принадлежностей
Шаг 5. Торцы вертикальных стоек нужно защитить от гниения. Можно их обработать специальными антисептиками, а можно несколько раз пропитать олифой или подсолнечным маслом. Кстати, олифа – это неочищенное техническое масло масличных культур, в том числе и подсолнуха.

Олифа
Несколько общих советов
Дадим несколько практических советов по устройству душевой кабинки.
Фундамент
Можно встретить советы ставить душевые кабины на винтовой фундамент, заливать под них бетонную площадку и т. д. Не советуем заниматься такими работами по нескольким причинам.

Заливать фундамент под душевую кабину не стоит
- Во-первых, душевая кабина не то строение, для которого требуется делать специальные фундаменты.
- Во-вторых, можем вам гарантировать, что со временем у вас возникнет желание построить теплый душ, а для этого придется демонтировать кабинку.

Лучше если летний душ будет стоять на тротуарной плитке или брусчатке
Под фундамент советуем использовать тротуарную плитку или широкую брусчатку. Снимите под ними небольшой слой земли, выровняйте по горизонту и уложите в подготовленные места плитку. Немного утрамбуйте ее – это исключит появление перекосов во время пользования кабинкой.

Существует несколько технологий, как правильно уложить тротуарную плитку своими руками
Видео — Правила укладки тротуарной плитки
Отвод воды
И здесь можно встретить советы по устройству целой инженерной системы. Что показывает практика? Объем емкости для воды редко позволяет одновременно принимать душ более чем двум людям, расход на каждого примерно 20÷30 литров. Время нагрева воды в зависимости от погоды составляет от пяти часов. Уверяем вас, что за это время использованная вода спокойно уйдет в землю. И еще – не стоит опасаться, что без отстойника «появятся неприятные запахи», это не канализация.

Дренажной слой в яме под сток воды из летнего дачного душа

Дренажная яма для летнего душа
Емкость для воды и душ
Вы можете построить самую красивую и самую надежную душевую кабину, но мыться в ней будет очень неудобно. Причина – неправильная установка бака для воды и душа. Как избежать такой неприятности? Дадим несколько практических рекомендаций.
Емкость для воды. Можно использовать два варианта: пластиковую и металлическую.
Пластиковые емкости

Бак для душа пластиковый плоский

Пластиковый бак для душа на дачу

Пластиковый бак для летнего душа

Пластиковые баки для воды от производителя
Достоинства: относительно невысокая цена, широкий выбор по вместимости, легкость монтажа.
Но есть и существенные недостатки.
- Во-первых, для повышения эффективности нагрева рекомендуется пользоваться пластиковыми емкостями черного цвета, а такой вариант сложно найти и, тем более, подобрать оптимальный вариант по вместимости. Перекрасить же белую емкость в черный цвет практически невозможно.
- Во-вторых, физические показатели прочности пластика не позволяют надежно зафиксировать место присоединения душа. Постоянные колебания выводного патрубка нарушают герметичность соединения, появляются протечки. Кроме того, из-за частых усилий на изгиб в этих местах проявляется эффект усталости материала. А это может привести к полному отрыву душа со всеми последствиями.
Металлические емкости

Металлическая емкость для летнего душа

Металлический бак для душа
Достоинства – высокая прочность металла гарантирует герметичность и надежность присоединения душа. Металл легко окрашивается в черный цвет, а такой цвет значительно увеличивает КПД нагрева воды солнечными лучами.
Недостатки – увеличивается вес. На коррозионные процессы можете не обращать внимания, толстостенная бочка будет стоять десятки лет. Тем более что бочка с водой коррозирует намного медленнее, чем пустая. Мы советуем пользоваться металлическими бочками: дешево и надежно.
Обустройство и эксплуатация
Еще один важный вопрос – как наполнять емкости водой. Заливать ведрами – не самый лучший вариант. Настоятельно советуем принять все меры, чтобы заливка воды выполнялась шлангом. Если у вас колодец или скважина находятся на большом удалении от кабинки, то можно сделать временную линию гибким шлагом из дачи. Мы еще расскажем, как сделать налив воды автоматическим. Для этого можно использовать обыкновенный поплавок из сливного бачка унитаза. Отрегулируйте его на разницу срабатывания примерно в двадцать литров воды с учетом размеров емкости. Это даст возможность постоянно поддерживать полную «заправку» бочки, вода постоянно будет нагреваться, вам не придется преждевременно в «авральном порядке» заканчивать процесс приема душа из-за отсутствия воды. Еще один плюс «автоматики» – исключается вероятность перелива воды. Переувлажнение почвы возле душевой кабины нежелательно.
Можно встретить предложение воду для душа отбирать из емкости при помощи поплавка. Конец гибкого заборного шланга фиксируется на поплавке (можно взять кусок пенопласта соответствующих размеров), по мере расходования воды поплавок будет опускаться, забор всегда производится с верхнего, самого теплого, слоя. Такое устройство дает эффект, но он незначительный. Дело в том, что вода в емкостях нагревается от стенок, горячая поднимается вверх, холодная опускается вниз. Движение воды по объему происходит почти постоянно, а это значит, что в баке нет большой разницы по температуре воды в зависимости от высоты.
Еще одно усовершенствование – сделать электрический подогрев, что позволит иметь теплую воду вне зависимости от погодных условий. Да, вода будет горячей, но только кто отважится принимать душ, если на улице низкая температура? Но и это не все проблемы. Во время устройства электрического подогрева следует строго соблюдать правила ПУЭ, а они предъявляют очень жесткие требования к таким работам. Кроме того, потребуется устанавливать автоматику включения/выключения нагревателей. Вам нужны такие «сложности» в обыкновенной душевой кабинке на улице? Если есть необходимость пользоваться душевой кабиной в холодное время – сделайте душевую в помещении дачи. Такое решение придется принимать в случае длительного времени пребывания на участке.

Баки для душа с подогревом
Если у вас душ прикреплен сразу к емкости (нет душевого шланга), то следует принять комплекс дополнительных мер к его надежной фиксации. При помощи упоров (деревянных или металлических) закрепите патрубок, исключите даже теоретическую вероятность колебаний во время пользования краном. Кран лучше устанавливать вентильного типа. У него намного легче ход штока, напор воды регулируется постепенно, рабочие поверхности не окисляются – плавность хода не изменяется с течением времени.

Дачный душ

Дачный душ обустроенный
Во время строительства душевой кабинки предусмотрите возможность пристройки к ней небольших дополнительных помещений. Их можно будет использовать как под расширения душевой или устройства возле нее еще одной, так и для отдельной раздевалки.
Промышленные душевые кабинки
Широкий выбор как по цене, так и по эксплуатационным характеристикам позволяет подобрать оптимальный вариант с учетом собственных предпочтений и индивидуальных особенностей дачного участка. Промышленные душевые кабинки могут быть полностью пластиковыми, металлическими с обшивкой различными материалами или тентованными. Комплектуются емкостями для воды, кабинами (металлическими или деревянными), поддонами и материалами обшивки.

Душ для дачи пластик

Кабина душевая

Душ портативный
По отзывам потребителей, пользоваться кабинками довольно удобно, но есть и несколько существенных недостатков. Пластиковые кабинки не отвечают требуемым показателям прочности, если на даче присутствуют дети, то сезон работы без ремонта такой конструкции будет большой удачей.
Второй недостаток – высокая цена. Душевая кабинка, сделанная своими руками, обойдется на порядок дешевле. Есть и довольно дешевые варианты промышленных кабинок, но по показателям прочности их можно отнести к категории «односезонных». Не стоит выбрасывать деньги, за эти деньги можно самостоятельно построить замечательную, прочную и надежную душевую кабинку.

Уличная душевая кабина «Эконом»

Поддон

Нагреватель

Душевая лейка
Третий недостаток – массовое производство рассчитано на среднего пользователя. Это закономерно, по такой схеме работают все производственные предприятия. Создавая кабинку своими руками, вы сможете делать все расчеты под себя, изменять месторасположение душа, его высоту, диметр сливных отверстий, механизмы регулировки и т. д. Кроме того, нет никаких ограничений по установке дополнительного оборудования, изменению размеров по высоте и ширине, устройства дополнительных элементов декора. Есть мастера, изготавливающие очень оригинальные душевые кабинки.

Стены из лозы
Видео — Душевая кабина дачная тентованная
Заключение
Каждый загородный участок требует постоянного благоустройства, занимайтесь этими делами. Начать можно с душевой кабинки, потом построить беседку, потом баню и так далее, от простого к сложному. Вы убедитесь на личном опыте – нет лучше того, что сделано своими руками.