Дизайн кухни 11 кв м – 55 реальных фото и идей дизайна
Кухни 11 кв нельзя назвать маленькими или слишком большими. Этот размер идеальный, чтобы оборудовать стильное функциональное помещение.

Советы по обустройству
Кухня 11 кв м, точнее дизайн интерьера имеет свои нюансы:
Определите приоритетную зону: для готовки или еды, исходя из этого рассчитывайте размеры каждой.
Разместите просторный стол, если дома живёт 4+ человек или вы регулярно приглашаете гостей.
Выберите любые цвета для 11-метровой кухни. Она не нуждается в увеличении.
Отделите столешницей плиту от мойки, а холодильник поставьте с краю.
Выстройте шкафы до потолка, чтобы разгрузить низ.


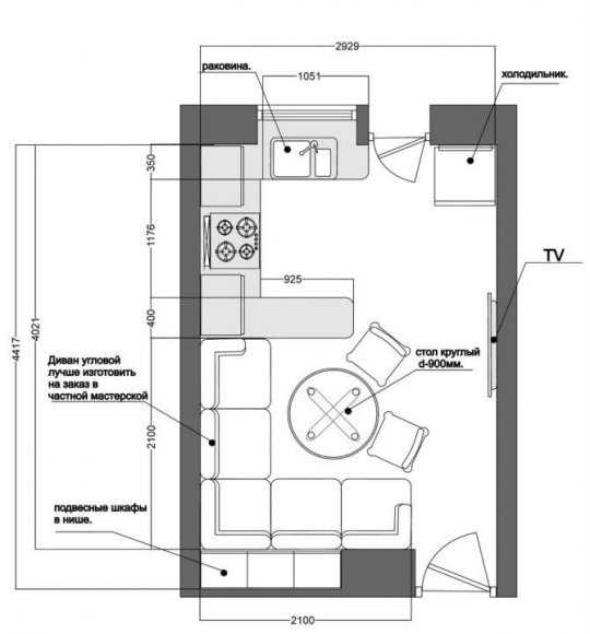
Планировка 11 кв метров
Площадь кухни 11 кв вместит даже остров, если вынести обеденный стол в гостиную. Но максимально распространенными планировками являются:
Линейная. Мебель стоит недорого и не занимает много места. Подойдёт для квартир, где больше любят есть, чем готовить.
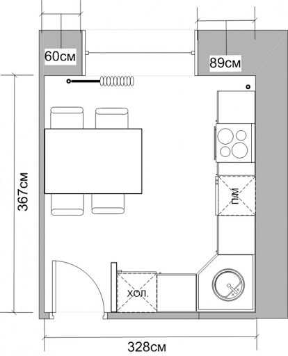
Г-образная. Угловая расстановка бьет рекорды популярности на любой кухне. Выстраивая на 11 кв рабочий треугольник позаботьтесь о том, чтобы расстояние между точками не превышало 3 метров.
Двухрядная. Параллельное размещение модулей предполагает ширину прохода 100-120 см. Разместите мойку, варочную и рабочую поверхность с одной стороны, а остальную технику — с другой.
П-образная. Кухня 11 кв буквой П позволяет задействовать углы и предоставляет множество мест для хранения и готовки. В неё можно встроить скамью или барную стойку, создав единую рабочую и обеденную зону.

На фото холодильник у окна в светлом интерьере.


Вид планировки зависит от ваших предпочтений и параметров кухни:
Длинную и узкую комнату 11 кв можно обустроить двумя способами: двухрядная или п-образная подчеркнут параметры, а г-образная или прямая вдоль короткой стены сделают кухню шире.
С квадратной можно поступить также. Вытянут помещение планировки в 1 или 2 ряда, а грамотно обыграют его кухни в форме букв п или г.
При составлении плана также учитывайте наличие окна или балкона. Под окном располагают стол со стульями или рабочую поверхность кухонного гарнитура.

На фото необычный кухонный интерьер с желтой стеной.


В каком цвете лучше оформить?
11м2 не нуждается в приемах визуального расширения, поэтому цвета могут быть любыми.
Светлые белые, серые, бежевые оттенки нивелируют множество мебели.
Яркий тон сделает интерьер уникальным — цветными могут быть гарнитур, фартук или отделка стен.


Темную цветовую гамму даже на такой площади стоит использовать грамотно, чтобы комната не выглядела в 2 раза меньше.
Матовые или полуматовые фасады выглядят дороже глянца.

На фото черный кухонный гарнитур в частном доме.


Варианты отделки и ремонт
Ремонт 11-метровой кухни сочетает эстетику и практичность. Для отделки стен, пола и потолка нужны немаркие и легко моющиеся материалы.
Потолок. Может быть побеленный или окрашенный, натяжной, панельный. В соотношении цена-качество выигрывает натяжной потолок: скрывает любые неровности, прост в уходе. Окрашенный или побеленный требует тщательной подготовки поверхности, а потолок из панелей ПВХ может желтеть в местах нагрева.
Стены. Покупайте материалы устойчивые к чистке, высокой температуре, влажности. Моющиеся обои или краска упрощают процесс ремонта и подходят к любому стилю. Имитация кладки из кирпича идеально впишется в лофт. Кафельные стены подойдут там, где много и часто готовят.
Фартук. Простой и функциональный вариант — керамическая плитка. Она легко моется, выдерживает высокую температуру и повышенную влажность.

На фото стильный обеденный стол из дерева и стекла.


Пол. ТОП-3 напольных покрытия для кухни 11 кв: кафель, ламинат и линолеум. Наиболее теплый и безопасный, а также простой в укладке — последний вариант. Ламинат должен быть водостойкий, нескользкий, с защитным слоем, иначе будет вздуваться от влаги. Самый прочный пол — кафельный, покрытие также не должно скользить, а под ним проложите систему теплый пол.


Как обставить кухню?
С расстановкой кухонной мебели вы уже определились, пришло время продумать окончательный дизайн кухни 11 кв м.
Идеи для кухни с холодильником
Расположение холодильника напрямую зависит от планировки гарнитура и исходных параметров помещения.
В линейной или угловой планировке его располагают у окна. В любом варианте кухни 11 кв его можно встроить в пенал или расположить рядом с ним — так комната не будет казаться загроможденной.


Дизайн кухни 11 кв м с диваном
Если гарнитур в кухне 11 кв выполнен в 2 ряда или в форме буквы П, выбирайте встроенный диван. В линейной и г-образной планировке он переносится на противоположную сторону.

На фото кухня с объемным диваном у стены.


Когда места в комнате остается много, ставят угловой диван. Чтобы сэкономить пространство — прямой. В случае необходимости дополнительного хранения — меняют на скамью с ящиками под ней.

На фото кухня 11 кв в бело-серых тонах.
Примеры с барной стойкой
Барная стойка используется в двух случаях: в квартире проживает 1-2 человека или в дополнение к столовой нужна отдельная зона для перекуса.
Стойку, размещенную на уровне столешницы, используют в качестве дополнительной рабочей зоны. Кухонный полуостров с перепадом высот обеспечивает одновременно дополнительное пространство для хранения и готовки, а также удобство для перекуса.


Обустройство обеденной зоны
Площадь 11 кв метров требует зонирования: разные части для готовки и поглощения пищи.
За обеденным столом должны помещаться все члены семьи. Квадратный или прямоугольный подходит для дивана, круглый для стульев.


Организация систем хранения
Если у каждой вещи есть свое место, в квартире будет чистота и порядок. Несколько советов для оптимизации хранения:
Замените нижние шкафы выдвижными ящиками — они вместительнее и удобнее.
Продумайте положение техники заранее, встраиваемая предпочтительнее.
Закажите раздвижные или подъемные механизмы вместо распашных для верхних фасадов, так будет безопаснее.
Приобретите фурнитуру для угловых модулей, чтобы использовать их по максимуму.
Организуйте дополнительные системы — антресоль, полки.


Особенности освещения
Точечная подсветка не только разграничивает, но и создаёт правильное настроение.
Яркий свет для готовки может быть в виде диодной ленты, подвесов или бра.
Приглушенное подсвечивание столового участка реализуется с помощью одной или нескольких люстр, в углу можно поставить бра.



На фото оригинальная люстра в интерьере кухни 11 кв м.
Как смотрится интерьер кухни в популярных стилях?
Кухни площадью 11 кв м будут прекрасно смотреться как в неоклассике и модерне, так и в провансе или кантри.

На фото темный кухонный интерьер в стиле лофт с кирпичной стеной.


Современный минимализм с нейтральным декором обеспечит порядок в помещении. Его отличия — отсутствие лишних деталей, натуральные материалы, лаконичная техника.
Интерьер, в котором хочется рассматривать массу деталей — кантри, прованс или сканди. Дизайнеры рекомендуют создавать уют с помощью мелочей вроде висящих сковородок и колоритного текстиля, а также классического сочетания деревянных и белых поверхностей.


Дизайн кухни-гостиной 11 квадратов
Кухню, в отличие от гостиной или спального места, не принято украшать: но именно декор добавит изюминку в любой ремонт.

На фото вариант кухни-гостиной 11 кв.


-
Приобретите декоративную вытяжку подходящую по стилю, чтобы не прятать её.
Повесьте светлые шторы, они расширят пространство.
Наденьте чехлы на стулья или бросьте уютные подушки на софу для контраста.
Расставьте красивую посуду, зеленые пряные травы и кулинарные книги в зоне готовки.
Повесьте подходящие картины или фото на уровне глаз на свободной стене.
Совет: Следуйте правилу умеренности: светлой кухне яркие украшения, цветной — умеренный декор.


Современные идеи дизайна
Перепланировка кухни с выходом на балкон заключается в объединении этих помещений. Самый простой и недорогой вариант — утеплить, демонтировать внутренний стеклопакет с дверью.

На фото вариант соединения комнаты с балконом.


Если площадь балкона позволяет, на нем можно расположить обеденный стол. Либо сделать барную стойку на бывшем подоконнике. Другая идея — пространство для отдыха с удобными сиденьями и телевизором.


Фотогалерея
Всегда начинайте ремонт кухни с плана — как будет стоять мебель и бытовая техника, сколько нужно розеток, где разместить светильники. Так вы можете быть уверены в том, что пространство будет подходить стилю вашей жизни.








