Деревянная баня 5×6 метров – чертежи бревенчатых стен
Продолжаем проектировать сруб бани 5×6 метров. На этот раз рассмотрим, как выглядит деревянная баня с возведенными стенами.

Данная статья является, с одной стороны, частью темы проектирования бани 5×6 метров своими руками, а с другой – дает ответ на очередной вопрос о том, как построить баню своими руками. Причем, разрабатываемые чертежи должны иметь все необходимые данные, по которым можно самим построить баню на дачном или другом загородном участке. Конечно, к этому проекту надо относиться как к примеру, который поможет Вам создать собственный проект с понравившейся планировкой.
Деревянная баня 5x6 метров на этапе возведения стен
Напомню, что ранее уже был спроектирован первый венец сруба или, как его еще называют, окладной венец. На нем, как на основании сруба, и будут укладываться до верхнего уровня чердака последующие венцы.
Высота рубленой стены от ленточного фундамента до верхнего бревна последнего венца сруба составляет 3. 46 метра. Чтобы получить такую высоту, потребуется уложить 21 венец из оцилиндрованных бревен диаметром 200 мм, включая окладной венец. Это даст возможность построить все помещения бани (кроме парной) со стандартной высотой потолков в 2.5 метра.
Часть стены выше уровня потолочного перекрытия будет относиться уже к чердачному помещению. Для опоры крыши служит последний венец сруба. На нем будет производиться монтаж стропил и других конструктивных элементов крыши.

Как и в нижнем венце, все угловые и промежуточные врубки делаются способом рубки в чашу с нижним расположением. На каждом бревне по нижнему горбу выбран продольный овальный паз с радиусом 100, глубиной 20 и шириной 120 мм. При укладке очередного венца верхнее бревно кладется на нижнее именно этим пазом. С учетом этого, шаг по высоте между смежными бревнами равен 160, а не 200 мм.
Остатки бревен (выступающая часть от габаритов сруба в плане) имеют длину 200 мм, что придает строению дополнительную прочность.
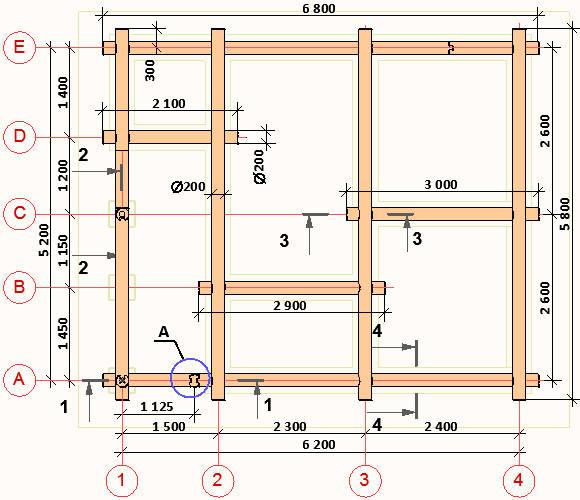
План и разрезы бани 5x6 метров
Для предотвращения раскатывания бревен, они соединяются деревянными нагелями диаметром 30 мм, расположенными на разных уровнях и соединяющими три смежных бревна. На данном этапе нагели не указаны, так как правильно рассчитать их расположение можно будет только после того, когда будут спроектированы все оконные и дверные проемы с обсадными коробками (окосячками).



Особенностью планировки бани 5×6 метров является наличие веранды под одной крышей. Для поддержания конструкции крыши в области веранды используется вертикальное бревно (колонна) диаметром 200 мм. Нижняя часть этой колонны опирается через подкладную доску на угловую опору столбчатого фундамента в точке пересечения осей A и 1.
Вертикальное бревно на пересечении осей 1 и C верхним концом поддерживает горизонтальное бревно, а нижним, так же, как и угловая колонна, соединяет и скрепляет бревна ограждения по способу «шип в паз».
Вертикальная стойка между осями 1 и 2 несет функцию соединительного элемента на случай, если длина исходных бревен будет не больше стандартных 6 метров. В такой же степени это относится и к венцам по оси Е с той лишь разницей, что они наращиваются по длине и скрепляются только между собой, но тем же способом.
В следующей статье рассмотрим и расположим дверные проемы, а также установим в них обсадные коробки. После этого можно будет уже начать следующий важный этап проектирования деревянной бани – перекрытия по деревянным балкам.
Перейти в главную статью темы: Проект бани 5×6 метров своими рукам
_