Двухэтажная баня из бруса 6 х 6
В этой статье предлагаем вашему вниманию очень удачный проект двухэтажной бани с террасой, при желании в дальнейшем можно установить отопительный котел и использовать здание круглый год. Размеры бани 6×6 м, что дает возможность иметь достаточно помещений для комфортного проживания. На первом этаже располагается парная (3,4 м2), мойка (4,3 м2), комната для отдыха (16,7 м2). Второй этаж отведен под две спальни, одна из них большая и рассчитана на двух человек. В холле второго этажа можно разместить шкафы под одежду.

Двухэтажная баня из бруса 6 х 6

Общий вид
С первого на второй этаж ведет маршевая поворотная лестница.

Поворотная лестница

Лестницы на косоурах
Кстати, мы еще подробно не рассматривали строительство лестницы, для обыкновенных бань такой потребности не было. В статье подробно расскажем о строительстве лестницы и уверяем вас, что сделать ее при наличии желания и терпения не так уж и сложно.

Планы этажей
Краткое описание особенностей конструкции и используемых материалов двухэтажной бани
Для изготовления сруба использован пиленый брус 150×150 мм, кровельное покрытие – ондулин, обшивка внутренних и внешних стен из натуральной вагонки. Для фасада можно заменить натуральную вагонку более дешевыми материалами.
Фундамент ленточный мелкоуглубленный армированный.

Схема мелкозаглубленного ленточного армированного монолитного фундамента
Нижний обвязочный ряд из пропитанного антисептиками бруса 150×150 мм. Для лаг требуются доски 50×150 мм, шаг лаг 60 см. Для монтажа чернового пола под утеплитель первого этажа крепятся черепные бруски 50×50 мм, они прибиваются по сторонам половых балок.

Брус 100х150 мм

Доски 50×150 мм

На фото черепные бруски
Сруб из пиленого бруса 150×150 мм, обвязочный ряд желательно пропитать антисептиками. В подполье бани очень сыро, дополнительная защита даст возможность надежно защитить деревянные элементы от порчи.
Балки перекрытия и стропила изготовлены из доски 50×150 мм, шаг 80 сантиметров. Для обрешетки можно брать рейки 20×50 мм или необрезные доски толщиной 20 мм.

Рейки 20×50 мм
Крыша утепленная. Делать на двухэтажной бане неиспользуемый чердак нецелесообразно по экономическим соображениям.
В качестве утеплителя используется минеральная вата или стекловата.

Утеплители
Об утеплителях стоит немного поговорить. Реклама производителей утверждает, что только минеральная «базальтовая» вата является самым лучшим материалом, она не колется, не вызывает аллергических реакций и т. д. За счет таких «выдающихся свойств» минеральной ваты все производители значительно увеличили ее цену.

Базальтовая вата
Что же на самом деле? Базальт в своем составе содержит более 50% стекла, именно оно является главным компонентом базальтовой ваты (как и для стекловаты), все остальные примеси очищаются. Тогда в чем разница по химическому составу между обыкновенной стекловатой и минеральной?
Далее, почему колется стекловата, а минеральная нет? И здесь все просто. Раньше технологии не позволяли делать волокна стекла очень тонкими, из-за этого у них было достаточно «силы», чтобы создавать неудобства. Сегодня стекловату можно изготавливать с очень тонкими волокнами, она уже не колется. Еще один момент, о котором не говорят производители.
По себестоимости изготовление стекла обойдется намного дороже, чем использование готового вулканического стекла (базальта). Тогда почему цена минеральной ваты намного больше, чем стекловаты? И здесь все просто. Реклама обслуживает производителей, а не потребителей. Грамотная рекламная кампания позволила продавать минеральную вату значительно дороже себестоимости производства, а за счет этого возрастают прибыли. Мы остановились на вате только для того, чтобы убедить вас не доверять слепо рекламе, а думать при выборе материалов. Вывод: далеко не все, что дороже имеет лучшие эксплуатационные характеристики.
Видео — Свойства каменной ваты Rockwool
Для фронтонов применяются шпонированные доски толщиной 40 мм, карнизы и углы сруба обиты вагонкой. Во фронтонах устанавливаются четыре окна, можете использовать пластиковые или сделать деревянные. Для самостоятельного изготовления деревянных окон нужны солидные знания и станки по дереву.

Шпунтованная доска

Деревянная вагонка

Окна для бани
Стропильная система двускатной крыши с вертикальными опорными стойками, сверху ноги связаны перемычкой.

Стропильная система двухскатной крыши
Два верхних ряда сруба нужно фиксировать увеличенным количеством нагелей, лучше применить металлические прутки. Последний ряд сруба выполняет функцию мауэрлата и будет воспринимать значительные боковые нагрузки от стропильных ног.

Нагель березовый для сборки срубов

Схема расположения нагелей в брусе
Крыша. Для покрытия крыши используется ондулин – отличное покрытие по качеству и цене.

Ондулин
Под этот материал делается обрешетка из реек 20×50 мм, можете вместо реек брать необрезные доски, доски б/у, оставшиеся после разборки опалубки фундамента и т. д. Ондулин крепится специальными гвоздями, вбивать гвозди нужно только в верхнюю часть волны. Под ондулин обязательно класть гидроизоляцию, нахлест не менее 10 сантиметров, изоляция фиксируется степлером.

Обрешетка под ондулин

Обрешетка под ондулин

Монтаж кровли из ондулина

Монтаж ондулина
Систему водоотвода дождевых вод устанавливать обязательно, во время ее монтажа не повредите листы ондулина, у него недостаточно прочности. Не забывайте делать уклон сливных лотков примерно 3÷5°, предусмотрите отвод воды от фундамента.

Ливневая канализация

Водосточная система

Дождеприемники для ливневой канализации
Этапы планирования строительства
Как и при каждом строительстве, стоимость и качество выполняемых работ зависит от комплексного соблюдения всех этапов. Отсюда вывод – спешить не стоит, намного выгоднее все предварительно спланировать и продумать, это позволит работы сделать намного быстрее и дешевле.
Шаг 1. Выбор конкретного месторасположения бани.

Схема правильного расположения бани

Планировка дачного участка с баней
Деревянная двухэтажная баня имеет жесткие противопожарные требования, во время выбора места необходимо руководствоваться положениями СНиП 2.07.01–89. Они регламентируют минимальные расстояния между смежными зданиями. Очень важно – несоблюдение этих правил вызовет большие проблемы в период регистрации здания в государственных органах самоуправления. Еще один нюанс. Площадка должна быть максимально ровной, физические характеристики грунтов должны отвечать показателям фундаментов. Соблюдение этих условий позволит сэкономить значительные средства на производстве земляных работ.
СНиП 2.07.01–89 скачать. ГРАДОСТРОИТЕЛЬСТВО. ПЛАНИРОВКА И ЗАСТРОЙКА ГОРОДСКИХ И СЕЛЬСКИХ ПОСЕЛЕНИЙ.
СНиП 2.07.01–89
Шаг 2. Выбор фундамента. Мы предлагаем применить ленточный мелкозаглубленный армированный фундамент на песчаной подушке.

Ленточный фундамент мелкозаглубленный монолитный с закладкой арматуры
Довольно хорош по всем показателям винтовой свайный, этот тип фундаментов можно использовать на любых грунтах и во всех климатических зонах. Единственный недостаток – своими руками его не сделать, нужно обращаться к специализированным строительным компаниям.

Свайно-винтовой фундамент
Преимущества армированного ленточного на песчаной подушке фундамента – при небольшой глубине (в пределах одного метра) здание будет устойчивым в различных климатических зонах. Устойчивость обеспечивает песчаная подушка толщиной до 30 см. Для армирования можно использовать строительную арматуру периодического профиля Ø 8÷10 мм.
Шаг 3. Сруб. Сруб сложите из пиленого бруса 150×150 мм, для утепления венцов можно использовать паклю или волокно. Особой разницы по физическим характеристикам между этими материалами нет, но работать с волокном намного легче и быстрее. Кроме того, уменьшается величина усадки строения, к внутренним отделочным работам можно приступать быстрее.

Баня из бруса своими руками

Как построить баню из бруса

Строительство бани из бруса
Шаг 4. Полы. Здесь есть определенные сложности. На первом этаже располагается баня и мойка, их полы нужно делать из натуральных досок, предусмотреть систему слива воды. В комнате отдыха можно настилать полы с использованием утеплителей. Но будьте очень внимательны – пар от горячей воды, выливающейся из парной и мойки, не успевает быстро проветриваться продухами. Это значит, что все подпольные деревянные конструкции должны тщательно пропитываться антисептиками, а утеплитель полов комнаты отдыха должен защищаться от проникновения пара.
Видео — Пол в бане (заготовка досок)
Видео — Пол в бане своими руками — монтаж
Видео — Пол в бане
Видео — Монтаж и утепление пола
Шаг 5. Потолки. Потолком на втором этаже являются элементы крыши, их в обязательном порядке следует утеплить и использованием паро- и гидрозащиты. Обшивать можно вагонкой, фанерой, ОСП или листами гипсокартона.

Утепление мансарды изнутри

Утепленная мансарда (уложен утеплитель)

Мансарда
На первом этаже ситуация другая. Все «профессиональные строители» настоятельно рекомендуют утеплять потолок первого этажа (на нем устанавливается пол второго этажа), при этом описывают, сколько нужно утеплителей, паро- и гидроизоляции и т. д. Эти материалы приобретаются у производителей по довольно высоким ценам.

Утепление потолка
Что советуем мы.
Вначале немного физики. Горячий воздух в комнатах первого этажа поднимается к потолку и нагревает его. Теплый потолок передает «градусы» на пол второго этажа и превращает его в «обогреваемый», причем бесплатно. Утеплитель препятствует нагреванию пола второго этажа дармовой энергией. Спрашивается, зачем делать утепление потолка на первом этаже, чтобы своими руками и своими деньгами понижать температуру на втором? Мы рекомендуем делать утепление только в одном случае: первый этаж не обогревается, а второй имеет автономную систему отопления. Во всех других случаях никакого дополнительного утепления делать не следует. Это правило не касается парной, там есть свои особенности.

Утепление потолка в парилке
Шаг 6. Парная и помывочная. Здесь высокая относительная влажность воздуха и температура, деревянные конструкции пребывают в очень сложных условиях. Совсем недавно среди пароизоляционных материалов получила широкое распространение алюминиевая фольга, ее настоятельно рекомендуют использовать для всех без исключения зданий, в том числе и деревянных. Производители называют только одно преимущество фольги – абсолютную непроницаемость. Настойчиво рекомендуют использовать ее для изоляции сруба парной от конденсата, советуют устанавливать фольгу между обшивкой стен и срубом и между обшивкой потолков и черновыми потолками.

Фольгированная пароизоляция
А что советуют практики? На фольге обязательно будет образовываться конденсат из-за разницы температур и большой влажности воздуха. Куда будет деваться этот конденсат? Постоянно капать на чистовую обшивку потолка или стекать на пол под обшивкой. При этом рейки, к которым крепится обшивка, длительное время будут мокрыми. О естественной вентиляции между обшивкой и фольгой даже теоретически говорить не стоит, она в этих местах полностью отсутствует. Что будет с постоянно влажной вагонкой? Вот именно. Мы только советуем и делимся своим опытом, решение должны приниматься каждым застройщиком самостоятельно.

Вентзазор между фольгой и вагонкой не превышает 3-4 см
Для того чтобы еще боле облегчить вам выбор технологии строительства, следует несколько слов сказать обо всех деревянных строениях. Каждая статья об этих материалах начинается со слов, что «деревянные здания дышат, это их важное преимущество». Все правильно. Только дерево не «глотает воздух ртом», а способно за счет явления гигроскопичности передавать излишки влаги из помещений наружу и наоборот. Если в помещении намного меньше влажность, чем на улице, то дерево постепенно выравнивает показатели. Именно этот процесс следует иметь в виду под сленгом «дерево дышит».

Стены из массива древесины пропускают через себя воздушные массы, забирают излишки влаги из воздуха, а при недостаточной влажности увлажняют воздух
За счет таких свойств влажность деревянных элементов постоянно пребывает в оптимальных значениях, если, конечно, свою руку не прикладывают строители. Как сможет дышать стена из натурального бруса, если ее поверхность герметично заклеена алюминиевой фольгой? Почему обыкновенные бани в деревнях стоят многие десятки лет, хотя при их строительстве никакие современные технологии и материалы не использовались? Во время ремонта меняется только несколько нижних венцов, и баня опять как новая. Нам и венцы менять не понадобится, теперь есть возможность пропитать их антисептиками. Только следует правильно подбирать технологию строительных работ для каждого конкретного здания и для каждого конкретного случая.

«Жидкий пергамин» Обработка нижних венцов и балок сруба

Замена нижних венцов сруба
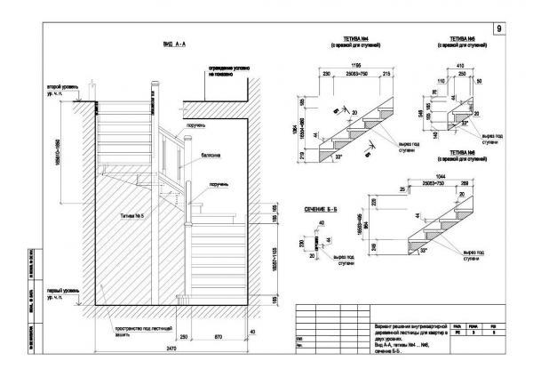
Надеемся, что теперь вам будет понятнее алгоритм принятия оптимальных решений во время определения способов и материалов строительства двухэтажной бани. Перейдем к одному из сложных конструктивных элементов – маршевой поворотной лестнице.
Как построить поворотную маршевую лестницу

Как построить поворотную маршевую лестницу
Умение делать такую лестницу пригодится не только (и не столько) при строительстве бань, а нашем случае без нее и вовсе не обойтись. Для изготовления понадобятся доски 50×200 мм, 40×200 мм и 25×150 мм. Балясины и поручни лучше приобрести в специализированном магазине или заказать у профессионального мастера. Все остальные работы можно выполнить самостоятельно.

Балясины, поручень
Шаг 1. Расчет размеров лестницы.
Хотя для многих эта тема кажется наиболее сложной, на самом деле это наиболее простые работы. Во время расчетов принимаются во внимание существующие рекомендации: в сумме высота и ширина ступеней должны составлять ≈ 47 сантиметров, ширина ступеней колеблется в пределах 20÷32 см, высота ступени ≈18 см. За оптимальные размеры принята ширина ступенек 30 см и высота подступенка 15 см. Угол наклона лестницы ≈30°.

Расчет размеров элементов лестницы

Расчет размеров ступеней лестницы

Элементы лестницы
Конечно, это размеры идеальные, они не всегда соответствуют практическим данным. В нашем случае общая высота лестницы будет 250 (высота потолка) +20 (высота потолочного перекрытия) = 270 сантиметров. Эту сумму разделим на оптимальную высоту каждой степени (18 см) и получим ровно 15 ступеней. Если получилось число с дробью, то количество ступеней нужно округлять до ближайшего целого числа, при этом первая ступень будет немного выше или ниже остальных. Желаете сделать все ступени одинаковыми – придется во время измерений использовать десятые доли миллиметра.

План двух уровней лестницы
Шаг 2. Снимите размеры.
Вам нужно знать высоту лестницы, длину косоуров, тетивы и все размеры по ступенькам. Не забудьте, что толщина досок входит в их размеры. С одной стороны тетива упирается в несущую балку, с другой стороны косоуры фиксируются к стене.

Вид А-А и сечение Б-Б
Шаг 3. Сделайте из фанеры шаблон ступеньки и подступенка, прикиньте еще раз их размеры и расположение.

Изготовление шаблона ступени

Разметка нижней части тетивы

Разметка проступей и подступенков

Изготовление шаблона для пазов

Изготовление пазов в тетиве

Подготовка подступенков и проступей
Выпилите в косоурах посадочные места для ступенек, закрепите косоуры к стене и к опорной балке. Проверьте положение косоуров, если обнаружились проблемы – исправьте их. К стене элементы лестницы крепятся прочными саморезами или гвоздями.

Разрез 1-1 и узел А
Шаг 4. Под шаблон вырежьте заготовки ступеней и подступенок, отшлифуйте места срезов, сделайте фаски и точно подгоните все отдельные детали под один размер. В тетиве сделайте посадочные гнезда для крепления ступенек. Можете делать их вручную (долго не очень точно) или использовать ручной электрический фрезер.

Деревянные ступени для лестниц
Шаг 5. При помощи отвеса и уровня проверьте пространственное положение косоуров и мест крепления тетивы. Начинайте по очереди устанавливать на посадочные места ступени. При необходимости производите окончательную подгонку каждого элемента. Старайтесь добиться такой точности, чтобы щели в местах стыков полностью исчезли. Элементы лестницы соединяйте саморезами, головки утапливайте и заделывайте отверстия. Настоятельно рекомендуем места соединений дополнительно промазывать столярным клеем, это будет дополнительной гарантией, что лестница со временем не начнет скрипеть при ходьбе.

Тетивы 1 и 3
В последнюю очередь крепятся балясины и перила. Есть несколько способов их крепления, мы кратко расскажем о каждом из них, а вы подбирайте для себя приемлемый вариант. Расстояние между балясинами должно быть в пределах 30 см, конкретные значения выбирайте с учетом ширины степеней. Высота перил ≈90 сантиметров. Надежное крепление нужно делать минимум в двух очках: к перилам и косоурам или тетивам. Некоторые широкие ступени позволяют крепить балясины к их торцу, но такие варианты встречаются очень редко.

Крепление балясин и перил

Установка балясин по направляющей нити
| № п/п | Описание работ |
|---|---|
| Шаг 1. | Сделайте разметку мест расположения каждой балясины, точность разметки должна быть на максимальном уровне. Линию расположения балясин на ступеньках лучше отбивать веревкой с синькой. |
| Шаг 2. | Отпилите верхние торцы балясин под углом лестницы, сделайте разметки под отверстия точно по центру. Перила должны располагаться строго параллельно к косоурам или тетивам. Крепление можно выполнять шпильками, саморезами или шкантами. Лучший вариант – применяйте деревянные шкантики. |
| Шаг 3. | В нижнем торце каждой балясины нужно высверлить отверстие диаметром 10÷12 мм, вставьте на столярный клей в них шкантики. Такие же отверстия нужно сделать в ступеньках, глубина отверстий в ступеньках не более 2/3 их толщины. Не «переусердствуйте», не просверлите ступеньку насквозь. Контролировать глубину отверстий можно при помощи элементарной приспособы. Намотайте на сверло изоляционную ленту на необходимом расстоянии от его конца. Это будет вашим универсальным маркером. Шкантики в оба отверстия должны входить с небольшим усилием. Если вы собираете лестницу на саморезы, то отверстия должны иметь диаметр на 1÷2 мм меньше, чем диаметр самореза. |
| Шаг 4. | Проверяйте положение каждой балясины. Если все в норме – оставьте их до полного высыхания столярного клея. |
| Шаг 5. | Приступайте к монтажу поручней. Перед этим в поручнях уже должны быть отверстия под верхние шкантики балясин. Смажьте все детали столярным клеем, установите на место, проверьте положение и оставьте сохнуть. |
| Шаг 6. | Хорошо отшлифуйте все видимые поверхности лестницы, снимите задиры, заделайте трещины и щели специальной замазкой. Покройте лестницу несколькими слоями лака или краски. |

Поручень и балясины
Терраса
Здесь вам пригодятся знания, приобретенные во время изготовления лестницы. Длина нашей террасы 3 м, ширина 1,5 м, вертикальные опоры из пиленого бруса 150×150 мм. Брус должен быть максимально качественным, выберите его для опор еще в период кладки сруба. Обратите внимание, чтобы на нем не было гнилых сучков и трещин, все четыре грани были параллельными, не было изгибов. Брус нужно тщательно отшлифовать, острые углы снять под фаску.

Бревна становятся абсолютно гладкими уже после обработки рубанком. Но шлифовка все равно необходима

Но одной шлифовкой дело не ограничивается, у каждого бревна срезаются острые грани углов. У строителей это называется – снимать фаску

Фреза Макита
Верхняя часть соединяется с обвязкой бани, нижняя часть устанавливается на фундамент, для гидроизоляции используйте два слоя рубероида. Идеальный вариант – брус садится на анкер, забетонированный во время заливки фундамента. Если для вас сложно точно рассчитать положение анкера, тогда фиксируйте вертикальные опоры металлическими уголками на саморезы и дюбеля.

Схема установки компенсатора усадки под вертикальный столб из бруса

Высоту колонн регулируют посредством специальных винтовых домкратов – компенсаторов

Компенсаторы усадки для сруба

Компенсаторы усадки для сруба

Домкрат винтовой регулируемый

Компенсаторы устанавливаются как в верхней части столба, так и под ним
Видео — Монтаж усадочных домкратов
Ограждение террасы из балясин и перил. Крепление балясин такое же, как мы описывали для лестницы. Только одно различие – все запилы по торцам должны делаться не под уклоном, а под углом 90°. Внимательно делайте разметку и сверлите отверстия, балясины крепятся на шкантики, не забывайте использовать столярный клей.

Ограждение террасы
Перила к вертикальным стойкам можно крепить в шип (довольно сложный метод) или уголками (самый простой метод). Советуем пользоваться уголками, по физическим характеристикам они надежнее шипового. В нижней части перил и опорах нужно вырубить долотом посадочные места уголков, работайте очень аккуратно, размеры посадочных мест должны соответствовать размерам металлических уголков.